PROPERTY INFORMATION物件情報
■ 一棟売 中野区新井二丁目 新築マンション計画中
- 建物名
- THE ROOM'S 中野新井
- 所在地
- 中野区新井二丁目
- 最寄り駅
- 中央線 「中野」駅 徒歩9分
- 価格
- SOLD OUT
■ 備考
中央線【中 野】駅 徒歩9分
総武線【中野】駅 徒歩9分
東京メトロ東西線 【中野】駅 徒歩9分
.
■ 詳細情報
- 土地面積
- 97.43m2
- 接道方向
- 北側公道
- 地目
- 宅地
- 用途地域
- 第一種住居地域
- 建ぺい率
- 60
- 容積率
- 200
- 建物面積
- 252.44m2
- 建築確認番号
- 第25ABNT-01-0347号
- 建築確認取得日
- 令和7年11月13日
- 構造
- 鉄筋コンクリート造(壁式)4階
- 築年月(完成予定)
- 入居可能時期
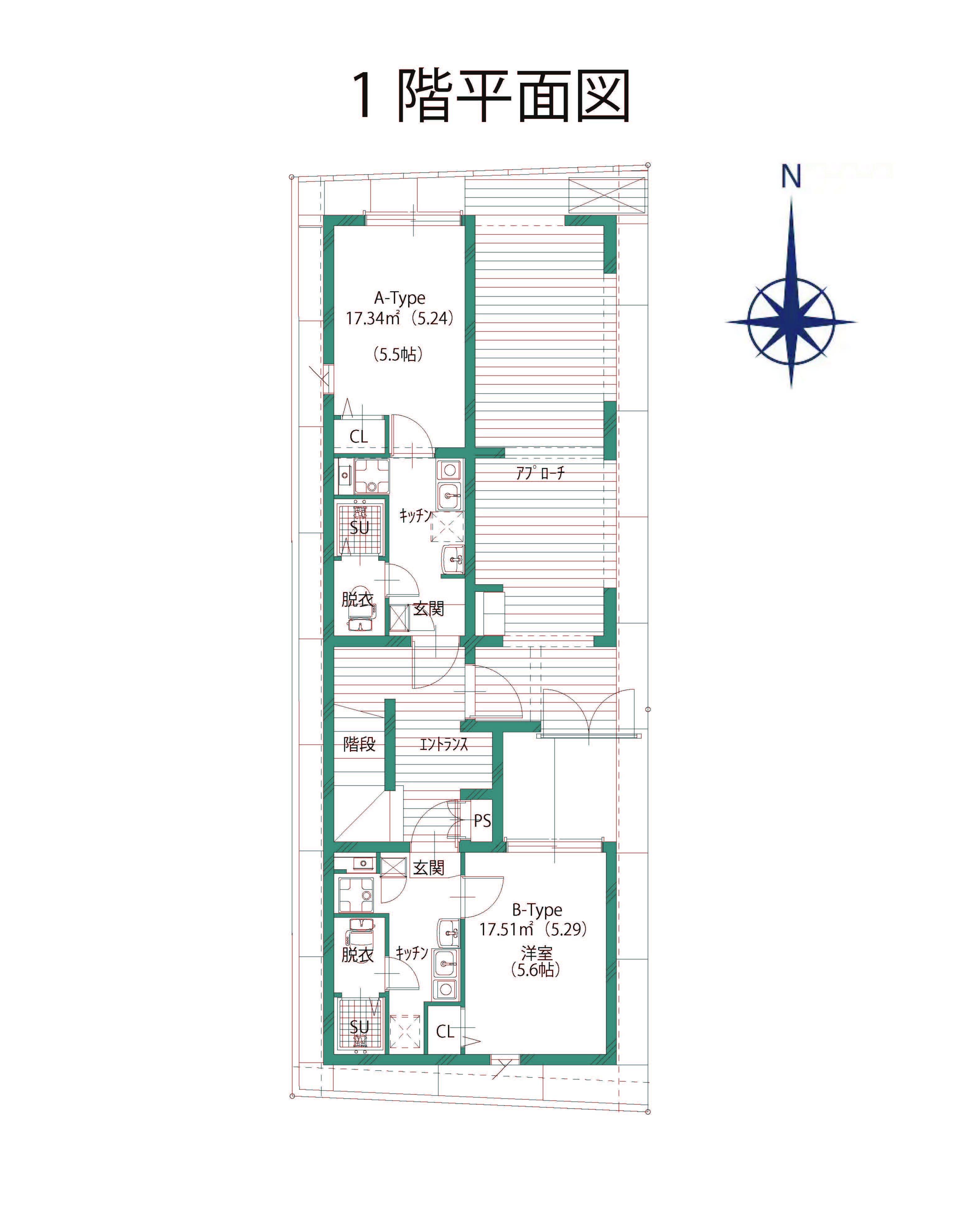
- 間取り
- 1K
- 専有面積
- 戸数
- 11戸
- 取引形態
- 売主







